Working Principles & Structural Characteristics of Supercritical Forged Gate Valves
Working Principles & Structural Characteristics of Supercritical Forged Gate Valves
Dec 15, 2022
Small boiler thermal power plants have high energy consumption, low efficiency, and serious environmental pollution. The development of coal as the main raw material for thermal power generation is increasingly exhausted. In terms of national policies, the construction of thermal power plants with a unit of less than 600 MW has been stopped in China. However, the main steam pressure of the 600 MW supercritical unit has reached 24.2MPa and the temperature is 538°C or 566°C, and the main steam pressure of the 1000 MW ultra-supercritical unit has reached 31MPa and a temperature of 593°C. The pressure of the main water supply system will be correspondingly higher. With high parameters, many large units and supercritical and ultra-supercritical thermal power units are put into operation, the requirements for the performance of generating units are getting higher and higher. Because the gate valve has the advantages of high operating temperature, high pressure, large diameters, reliable sealing, and two-way sealing, it has been widely used in thermal power units to control the effective opening and closing of high-temperature and high-pressure steam-water media.
Working principles & structural characteristics of supercritical forged gate valves
As a kind of isolation valve, the gate valve is used to connect or cut off the medium in the pipeline. Its structural features include small fluid resistance, small opening and closing torque, short structural length and good sealing performance, but its sealing surface is also easy to be damaged; the opening and closing time is long, and the structure is complicated. Fully forged gate valves with small diameters also face difficulties such as high-temperature and high-pressure media making the middle cavity suppress pressure, difficulty in opening and closing, small size of the middle cavity, and inability to weld guide ribs. Here is some advice on how to design this valve.
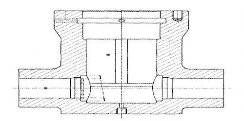
The supercritical fully forged gate valve with small diameters is composed of valve bodies, valve seats, valve discs, valve stems, packing chambers, connecting flanges, electrical equipment, etc., as shown in Figure 1. The body of the forged gate valve is integrally forged from a rough steel ingot, and the main internal parts of the valve, such as the valve stem, packing chamber, valve disc, valve seat and pressure equalizing ring are also forged. The forging blanks are all forged according to the conventional forging process, and free hammer forging is adopted on the forging equipment, so that the shape of the forging is close to the shape of the parts we need. Among them, the forged valve body is a large forging, the forging procedure is relatively complicated, and the requirements for forging equipment are more stringent. However, the overall forging process avoids the inherent defects such as shrinkage cavity, slag inclusions and porosity existing in the casting of the cast steel valve body, ensuring overall system security.
The structure of the valve body is a direct current type, and the processing volume of the fully forged valve body is great, which brings certain limitations to the production cycle. However, the difficulty of processing the valve body mainly exists in the processing of the guide ribs of the valve body. It is impossible to weld guide ribs in the middle cavity of the valve body, so the valve body adopts concave guide ribs, which are directly processed on the valve body (as shown in Figure 2), and will have certain requirements for processing equipment and operators.
Providing a balance valve between the branch pipe and the valve cavity when the medium flows can prevent the high-temperature and high-pressure medium from holding pressure in the cavity when the valve is opened, and reduce the valve's requirement for the opening and closing torque of the electric device to a certain extent. When it is necessary to open the gate valve, open the balance valve first, so that the medium flows into the middle cavity of the valve body through the balance valve; the pressure of the branch pipe and the middle cavity can be kept consistent to prevent the opening of the valve from being hindered by the increase in pressure in the middle cavity. At the same time, the wear and scratch of the sealing surface will be intensified under the great pressure difference. Opening the balance valve first and then the main valve reduces the wear of the sealing surface and prolongs the service life of the valve. The valve body and the connecting flange are connected by a column, which is convenient and simple to disassemble. The medium’s temperature and pressure of the supercritical fully forged gate valve are relatively high, and the requirements for the stem sealing packing are also stricter than those of valves with other parameters. The sealing packing is used in combination with upper and lower packing and flexible graphite to ensure the sealing effect. The middle cavity adopts a pressure self-tight sealing structure. The greater the medium pressure is, the better the sealing performance of the valve becomes. The design of the valve disc includes elastic discs, wedge discs and parallel discs. Here we use wedge double disc. The disc has low requirements for the machining accuracy of the wedge angle, which is easy to seal, and is not easy to cause scratches due to temperature changes. With the wear of the sealing surface, the disc has a certain self-compensation function, prolonging the service life of the valve, and maintenance is convenient after the sealing surface is worn. The valve seat is also made by forging, and the sealing surfaces of the valve seat and the disc are made of all butt-welded hard alloy materials to ensure good sealing performance and prolong the service life of the valve as much as possible.

Working principles & structural characteristics of supercritical forged gate valves
As a kind of isolation valve, the gate valve is used to connect or cut off the medium in the pipeline. Its structural features include small fluid resistance, small opening and closing torque, short structural length and good sealing performance, but its sealing surface is also easy to be damaged; the opening and closing time is long, and the structure is complicated. Fully forged gate valves with small diameters also face difficulties such as high-temperature and high-pressure media making the middle cavity suppress pressure, difficulty in opening and closing, small size of the middle cavity, and inability to weld guide ribs. Here is some advice on how to design this valve.
The supercritical fully forged gate valve with small diameters is composed of valve bodies, valve seats, valve discs, valve stems, packing chambers, connecting flanges, electrical equipment, etc., as shown in Figure 1. The body of the forged gate valve is integrally forged from a rough steel ingot, and the main internal parts of the valve, such as the valve stem, packing chamber, valve disc, valve seat and pressure equalizing ring are also forged. The forging blanks are all forged according to the conventional forging process, and free hammer forging is adopted on the forging equipment, so that the shape of the forging is close to the shape of the parts we need. Among them, the forged valve body is a large forging, the forging procedure is relatively complicated, and the requirements for forging equipment are more stringent. However, the overall forging process avoids the inherent defects such as shrinkage cavity, slag inclusions and porosity existing in the casting of the cast steel valve body, ensuring overall system security.
The structure of the valve body is a direct current type, and the processing volume of the fully forged valve body is great, which brings certain limitations to the production cycle. However, the difficulty of processing the valve body mainly exists in the processing of the guide ribs of the valve body. It is impossible to weld guide ribs in the middle cavity of the valve body, so the valve body adopts concave guide ribs, which are directly processed on the valve body (as shown in Figure 2), and will have certain requirements for processing equipment and operators.
Providing a balance valve between the branch pipe and the valve cavity when the medium flows can prevent the high-temperature and high-pressure medium from holding pressure in the cavity when the valve is opened, and reduce the valve's requirement for the opening and closing torque of the electric device to a certain extent. When it is necessary to open the gate valve, open the balance valve first, so that the medium flows into the middle cavity of the valve body through the balance valve; the pressure of the branch pipe and the middle cavity can be kept consistent to prevent the opening of the valve from being hindered by the increase in pressure in the middle cavity. At the same time, the wear and scratch of the sealing surface will be intensified under the great pressure difference. Opening the balance valve first and then the main valve reduces the wear of the sealing surface and prolongs the service life of the valve. The valve body and the connecting flange are connected by a column, which is convenient and simple to disassemble. The medium’s temperature and pressure of the supercritical fully forged gate valve are relatively high, and the requirements for the stem sealing packing are also stricter than those of valves with other parameters. The sealing packing is used in combination with upper and lower packing and flexible graphite to ensure the sealing effect. The middle cavity adopts a pressure self-tight sealing structure. The greater the medium pressure is, the better the sealing performance of the valve becomes. The design of the valve disc includes elastic discs, wedge discs and parallel discs. Here we use wedge double disc. The disc has low requirements for the machining accuracy of the wedge angle, which is easy to seal, and is not easy to cause scratches due to temperature changes. With the wear of the sealing surface, the disc has a certain self-compensation function, prolonging the service life of the valve, and maintenance is convenient after the sealing surface is worn. The valve seat is also made by forging, and the sealing surfaces of the valve seat and the disc are made of all butt-welded hard alloy materials to ensure good sealing performance and prolong the service life of the valve as much as possible.

1. Valve bodies 2. Valve seats 3. Discs 4. Valve stems 5. Packing chambers 6. Self-sealing packing 7. Pressure equalizing rings 8. Quarter rings 9. Pressure plates 10. Columns 11. Connecting flanges 12. Electric fittings 13. Bypass valves

Figure 2 Fully forged valve bodies
Next: Design of Small-diameter Supercritical Fully Forged Gate Valves
Previous: Socket-welded Forged Steel Gate Valves
News
About Us
Best Categories
Useful Links